VOSTER set VANILLA 80 rámové dvere plné, laminát CPL Dub Pieskový +Zárubňa
Cena s DPH: 291,60 € / set
| Kód: | VOS-VANILLA80-CPLDUBPIESKOVY |
| Výrobca: | Voster |
| Dostupnosť: | Výroba 1-5 týždňov |
VOSTER set VANILLA 80 rámové dvere plné, laminát CPL Dub Pieskový
Vyberte si dostupné doplnky ( doplnok vkladáte do košíka v ľubovolnom množstve )
VOSTER VANILLA 80 rámové dvere plné, laminát CPL Dub Pieskový
Konštrukcia:
Krídlo s rámom,
Rám z dosky MDF,
Šírka horizontálnych rámov 14 cm.
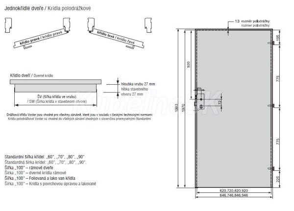
Výška dverí 1983 mm
Presklenie: Tvrdené sklo
Dostupné šířky: „60”, „70”, „80”, „90”.
Kovanie
Tri čapové pánty skrutkovacie,
Zámok na kľúč, s cylindrickou vložkou alebo s WC zámkom
Povrchová úprava: polep 3D Finish
Upozornenie: Obrázky môžu byť ilustratívne!





