VOSTER set VANILLA 10 rámové dvere presklené, fólia 3D Dub Montana +Zárubňa
Cena s DPH: 264,60 € / set
| Kód: | VOS-VANILLA10-3DDUBMONTANA |
| Výrobca: | Voster |
| Dostupnosť: | Výroba 1-5 týždňov |
VOSTER set VANILLA 10 rámové dvere presklené, fólia 3D Dub Montana
Vyberte si dostupné doplnky ( doplnok vkladáte do košíka v ľubovolnom množstve )
VOSTER VANILLA 10 rámové dvere presklené, fólia 3D Dub Montana
Konštrukcia:
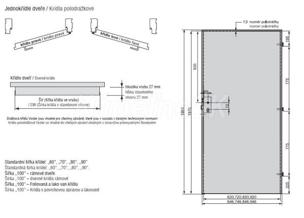
Krídlo s rámom,
Rám z dosky MDF,
Šírka horizontálnych rámov 14 cm.
Výška 1983 mm
Presklenie: Tvrdené sklo
Dostupné šířky: „60”, „70”, „80”, „90”.
Kovanie
Tri čapové pánty skrutkovacie,
Zámok na kľúč, s cylindrickou vložkou alebo s WC zámkom
Povrchová úprava: polep 3D
Upozornenie: Obrázky môžu byť ilustratívne!





