Upozornenie:
Platí iba pri objednávke tovaru cez ESHOP. Zľava je uvedená pri každom tovare individuálne.
Zľavy neposkytujeme pri platbe platobnou kartou v Štúdiu KúpeľneSK.
Roth LYSW1AP2 75cm Bočná stena pre sprchový kút Brillant/Číre sklo
Cena s DPH: 240,18 € / ks Cena s DPH s dodatočnou zľavou: 232,97 € / ks
| Kód: | 1135009971 |
| Výrobca: | Roth |
| Dostupnosť: | Zvyčajne 1-2 týždne |
Dodatočná zľava 1-10% pre Vás. V košíku zadajte Zľavový kupón: "KUPELNESK"
Vyberte si dostupné doplnky ( doplnok vkladáte do košíka v ľubovolnom množstve )
Roth SW1AP2 75cm Bočná stena pre sprchový kút Brillant/Číre sklo
Druh výrobku: bočná stena ku sprchovacím dverám
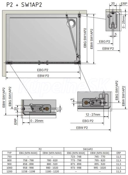
Výška (cm): 197 cm
Systém otvárania: pevný - nemožno otvoriť
Hrúbka pevného skla: 5 mm
Výplň: sklo číre
Profil chróm
Nastaviteľnosť (cm) 73,5-76 cm
Bočnú stenu LYSW1AP2 stabilizuje šikmá vzpera s nastaviteľným uhlom. Ak by ste potrebovali riešiť sprchový kút v tvare "U", teda dvere kombinované s pevnými stenami z oboch strán, tak s týmito produktmi je to možné (LYSW1AP2 + LYP2 + LYSW1AP2)
Obrázky môžu byť ilustračné!!!





