VOSTER set VANILLA 10 rámové dvere presklené, fólia CPL Dub polárny +Zárubňa
Cena s DPH: 291,60 € / set
| Kód: | VOS-VANILLA10-CPLDUBPOLARNY |
| Výrobca: | Voster |
| Dostupnosť: | Výroba 1-5 týždňov |
VOSTER set VANILLA 10 rámové dvere presklené, fólia CPL Dub polárny
Vyberte si dostupné doplnky ( doplnok vkladáte do košíka v ľubovolnom množstve )
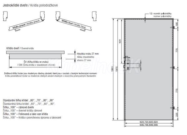
VOSTER VANILLA 10 rámové dvere presklené, fólia CPL Dub polárny
Konštrukcia:
Krídlo s rámom,
Rám z dosky MDF,
Šírka horizontálnych rámov 14 cm.
Výška 1983 mm
Presklenie: Tvrdené sklo
Dostupné šířky: „60”, „70”, „80”, „90”.
Kovanie
Tri čapové pánty skrutkovacie,
Zámok na kľúč, s cylindrickou vložkou alebo s WC zámkom
Povrchová úprava: CPL Laminát
Upozornenie: Obrázky môžu byť ilustratívne!





